Proyectos
Residenciales
Bahía
Bahía

Baño
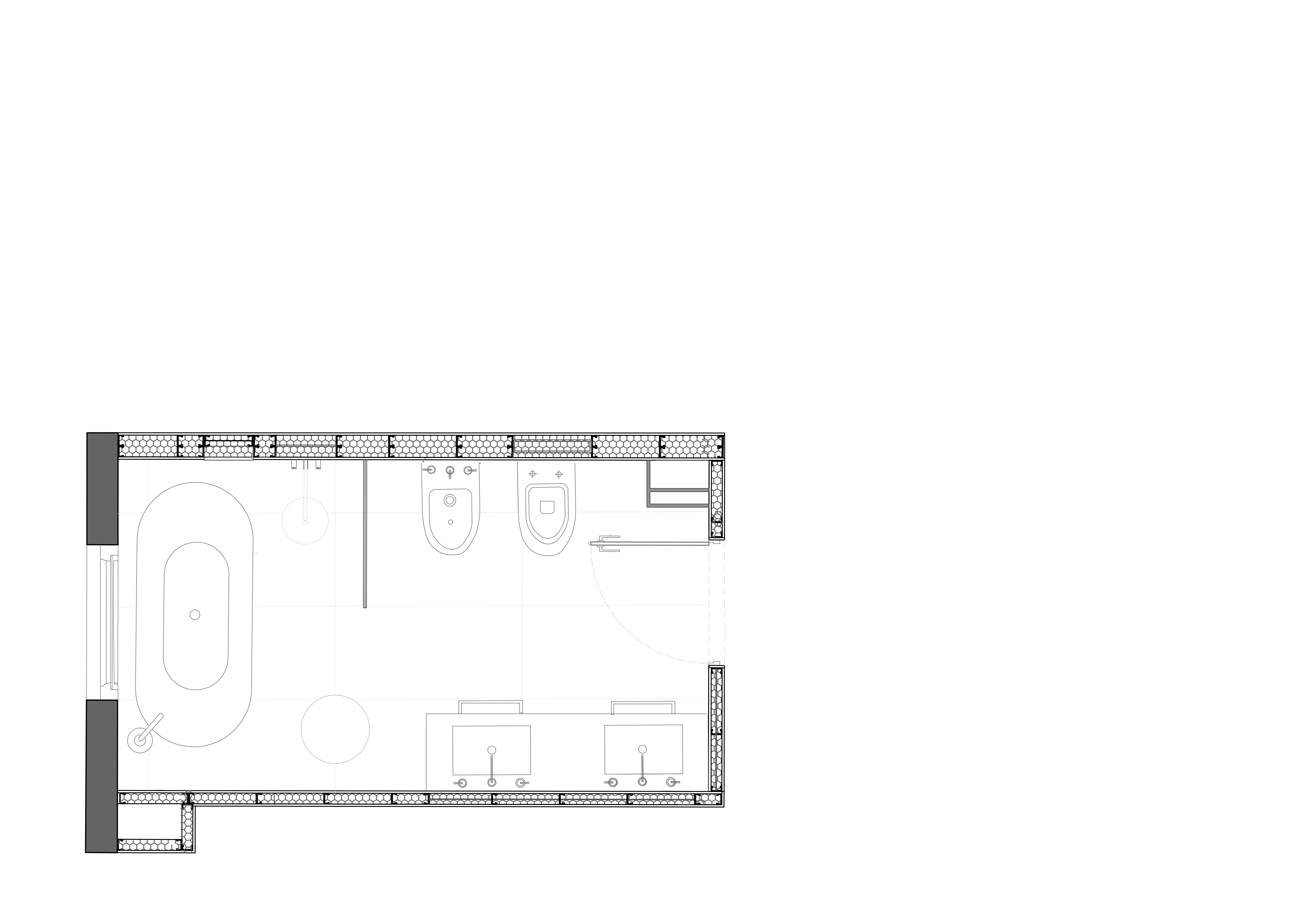
El diseño de este baño responde al concepto “Bahía”, entendido como un espacio que, al igual que una ensenada protegida, ofrece refugio y contención. Inspirado en la analogía entre las características físicas y sensoriales de una bahía y las aspiraciones estéticas de la pareja, el proyecto combina funcionalidad, serenidad y elegancia.La paleta cromática se compone de azules profundos, que remiten a la profundidad marina; tonos neutros y arenas, que evocan la costa; y acentos dorados, que sugieren la calidez del sol.
Mari & Mari


Baño
El diseño de este baño responde al concepto “Bahía”, entendido como un espacio que, al igual que una ensenada protegida, ofrece refugio y contención. Inspirado en la analogía entre las características físicas y sensoriales de una bahía y las aspiraciones estéticas de la pareja, el proyecto combina funcionalidad, serenidad y elegancia.La paleta cromática se compone de azules profundos, que remiten a la profundidad marina; tonos neutros y arenas, que evocan la costa; y acentos dorados, que sugieren la calidez del sol.
Mari & Mari


Baño
El diseño de este baño responde al concepto “Bahía”, entendido como un espacio que, al igual que una ensenada protegida, ofrece refugio y contención. Inspirado en la analogía entre las características físicas y sensoriales de una bahía y las aspiraciones estéticas de la pareja, el proyecto combina funcionalidad, serenidad y elegancia.La paleta cromática se compone de azules profundos, que remiten a la profundidad marina; tonos neutros y arenas, que evocan la costa; y acentos dorados, que sugieren la calidez del sol.
Mari & Mari






