Proyectos
Residenciales
Residenciales
Residenciales

Adri y Zobei
Adri y Zobei
Adri y Zobei
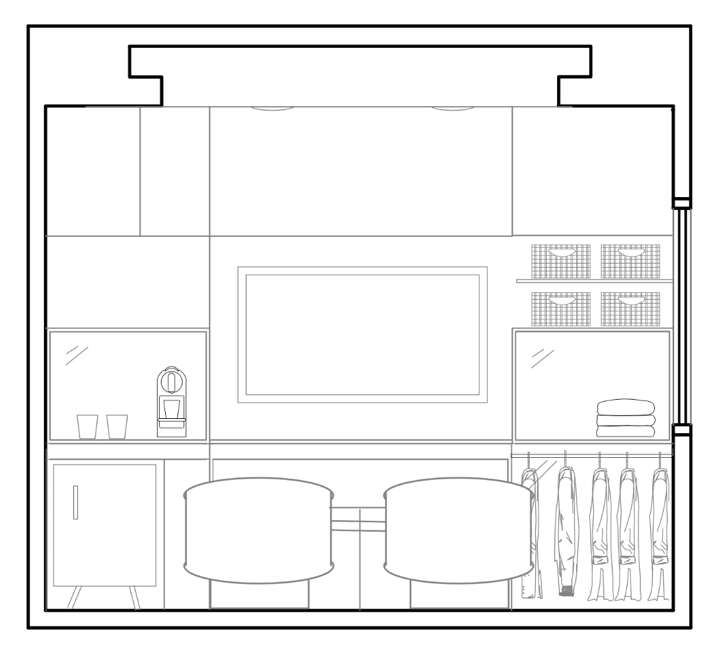
Dormitorio matrimonial
Dormitorio matrimonial
Dormitorio matrimonial
Se pensó en un espacio cálido y funcional. Para ello se instalo un cieloraso de roca de yeso para optimizar la calefacción e incorporar la iluminación LED. Asimismo se ideó un rincón de desayuno con cafetera y heladera integrada, además del área de guardado con TV
Mari & Mari


Paunero
Paunero
Paunero
Cocina/Comedor/Lavadero
En este departamento de tres ambientes en Palermo se renovó la cocina-comedor-lavadero para lograr mayor amplitud y funcionalidad. Se eliminaron los muros divisorios, integrando un único espacio luminoso y acogedor. Los materiales claros y los tonos neutros aportan modernidad y calidéz.
En este departamento de tres ambientes en Palermo se renovó la cocina-comedor-lavadero para lograr mayor amplitud y funcionalidad. Se eliminaron los muros divisorios, integrando un único espacio luminoso y acogedor. Los materiales claros y los tonos neutros aportan modernidad y calidéz.
Paunero
Paunero
Paunero
Dormitorio
Dormitorio
Dormitorio
Combina elegancia y funcionalidad en un espacio armonioso y acogedor. Se utilizan materiales nobles, una paleta neutra y mobiliario de líneas depuradas para transmitir serenidad. La distribución optimiza el descanso, el almacenamiento y la comodidad, logrando un equilibrio entre estética y practicidad.
Combina elegancia y funcionalidad en un espacio armonioso y acogedor. Se utilizan materiales nobles, una paleta neutra y mobiliario de líneas depuradas para transmitir serenidad. La distribución optimiza el descanso, el almacenamiento y la comodidad, logrando un equilibrio entre estética y practicidad.
















