Proyectos
Residenciales
Waf
Waf


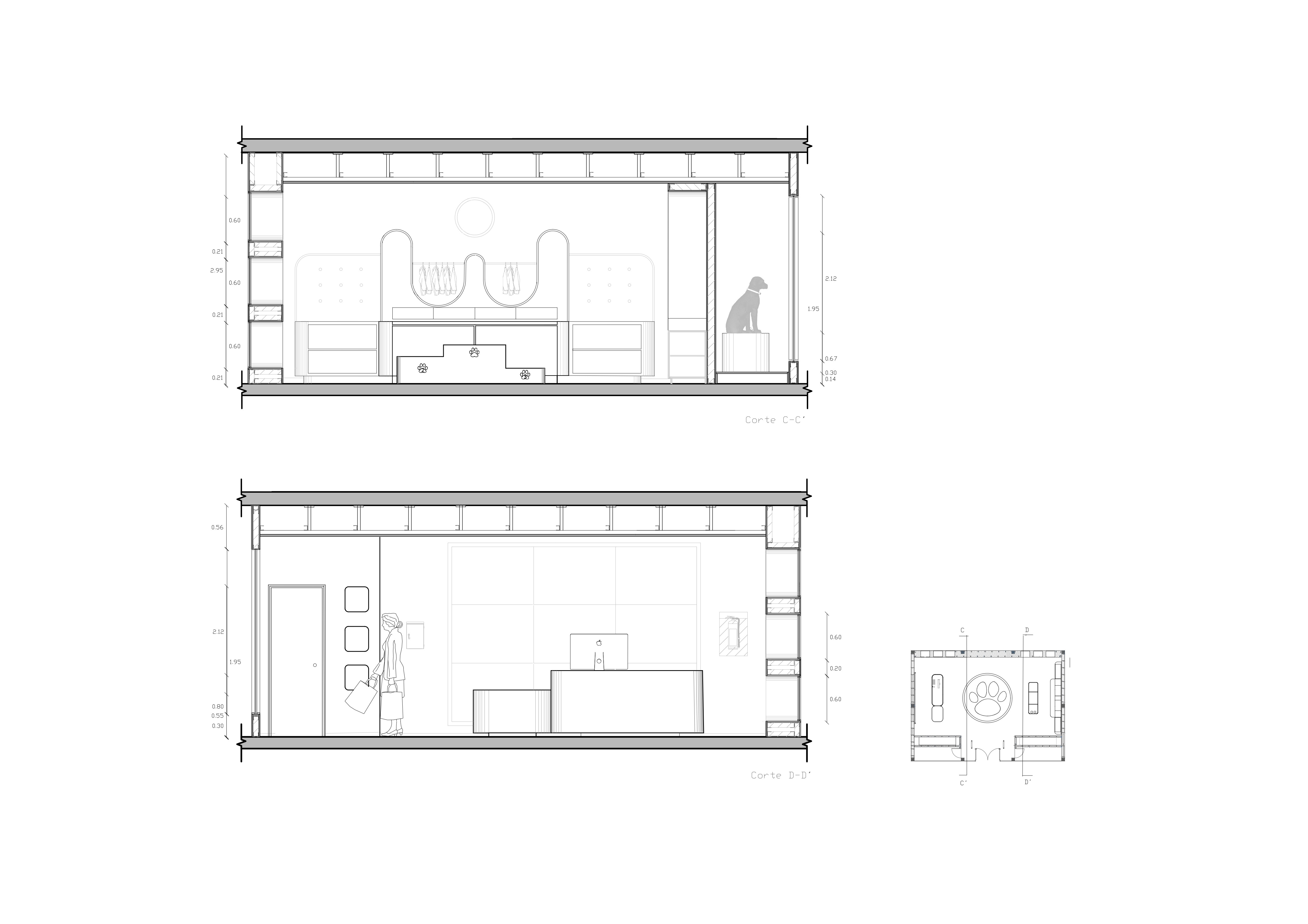
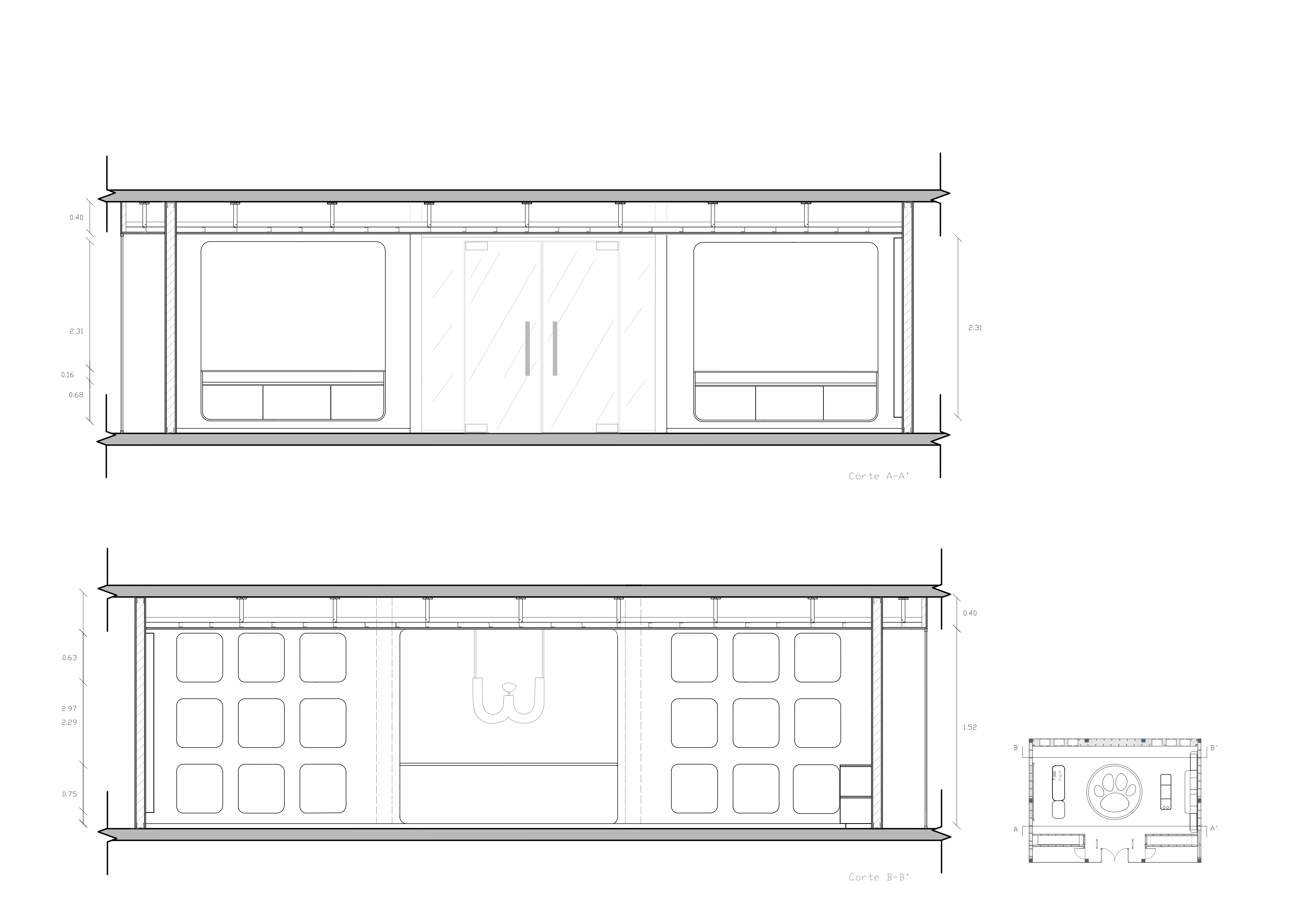
Tienda de mascotas
WAF-El eje del proyecto es la Huella, que guía un recorrido fluido en un espacio amable y sensorial, construido con geometrías curvas. La paleta combina acentos en verde, naranja, rosa y azul para aportar frescura y calidez. Materiales como linóleo y madera laqueada refuerzan el confort y el cuidado. El diseño busca convertir el afecto cotidiano en una huella arquitectónica que celebra la presencia de las mascotas en nuestras vidas.
Mari & Mari


Tienda de mascotas
WAF-El eje del proyecto es la Huella, que guía un recorrido fluido en un espacio amable y sensorial, construido con geometrías curvas. La paleta combina acentos en verde, naranja, rosa y azul para aportar frescura y calidez. Materiales como linóleo y madera laqueada refuerzan el confort y el cuidado. El diseño busca convertir el afecto cotidiano en una huella arquitectónica que celebra la presencia de las mascotas en nuestras vidas.
Mari & Mari


Tienda de mascotas
WAF-El eje del proyecto es la Huella, que guía un recorrido fluido en un espacio amable y sensorial, construido con geometrías curvas. La paleta combina acentos en verde, naranja, rosa y azul para aportar frescura y calidez. Materiales como linóleo y madera laqueada refuerzan el confort y el cuidado. El diseño busca convertir el afecto cotidiano en una huella arquitectónica que celebra la presencia de las mascotas en nuestras vidas.
Mari & Mari












